Menção Honrosa em Concurso Público Nacional de Arquitetura . 2023
















“Assim como cidadania e cultura formam um par integrado de significações, assim também cultura e territorialidade são, de certo modo, sinônimos. A cultura, forma de comunicação do indivíduo e do grupo com o universo, é uma herança, mas também um reaprendizado das relações profundas entre o homem e o seu meio, um resultado obtido por intermédio do próprio processo de viver.”
(…)
“As cidades têm um grande papel na criação dos fermentos que conduzem a ampliar o grau de consciência. Por isso são um espaço de revelação”
(Milton Santos, O Espaço do Cidadão)
salvador capital afro
“Existe uma história do povo negro sem o Brasil, mas não existe uma história do Brasil sem o povo negro”. (Januário Garcia)
“Fora dos limites do continente africano, não há lugar onde a negritude é tão visível e inserida no modo de ser, agir e pensar de uma população do que na capital da Bahia. Na fala e no jeito de se expressar, de vestir, na gastronomia e na forma de comer, na música e demais manifestações artísticas…” (Salvador Capital Afro, Prefeitura de Salvador)
Salvador é a cidade mais negra do Brasil. A expressão criativa da cidade tem fortes influências da ancestralidade africana e dos povos originários.
As tradições dos povos de origem iorubá, com maior presença na zona urbana de Salvador, em conjunto com a herança dos povos de origem banto, no interior da Bahia (em especial no Recôncavo e Baixo Sul), mescladas às tradições dos povos originários, são as principais matrizes das cores, texturas, ritmos, sonoridades, sacralidades, linguagens, sabores e estéticas que marcam a expressão criativa soteropolitana e baiana.
Este projeto parte da premissa que uma escola criativa na cidade mais negra do Brasil precisa interpretar tal ancestralidade e projetá-la para o futuro, na construção deste importante espaço de expressão cultural.
Salvador Capital Afro é uma iniciativa pública que reconhece a cultura negra enquanto herança e potencialidade social, cultural e econômica. A ideia é que a escola, enquanto território de afirmação cultural, se integre a essa “rede de fluxos e fixos” nos campos da gastronomia, moda, audiovisual, turismo, economia criativa e inovação, com ações já iniciadas em áreas como Rio Vermelho, Pelourinho, Santo Antônio, Liberdade, Curuzu, Itapuã e Ilha da Maré.
espaço de sincretismo criativo
A expressão cultural da Bahia, como do Brasil, é múltipla e complexa, a começar pela geografia da colonização e da diáspora africana, que deu origem ao povo brasileiro, e baiano em particular: do Benim (reinos de Ketu e Abomé), Nigéria (Império Oyo), Reino de Gana, Togo, e que se mesclam às influências dos povos originários e do processo de colonização. O que há de comum nesse amplo espectro cultural é o sentido de resiliência e de sincretismo (não apenas religioso, mas cultural em essência), como meio de resistência.
O conceito de sincretismo aqui aplicado, enquanto “síntese de elementos díspares, originários de diferentes visões do mundo”, orienta as expressões éticas, técnicas e estéticas do projeto para este espaço de criatividade.
espaço de cidadania e cultura
Propõe-se um ambiente de convergência entre território, espaço e paisagem. A escola como uma extensão da cidade, um espaço de revelação, carregado das texturas, cores, espacialidades e dinamicidades que expressam a resiliência e a diversidade cultural da Bahia, suas origens e potencialidades.
espaço e pedagogia
“A consciência emerge do mundo vivido, (…) compreende-o como projeto humano. Em diálogo circular (…), vai assumindo, criticamente, o dinamismo de sua subjetividade criadora.
(…) a importância das experiências informais nas ruas, nas praças, no trabalho, nas salas de aula das escolas, nos pátios dos recreios (…) Há uma natureza testemunhal nos espaços tão lamentavelmente relegados das escolas (…) Há uma pedagogicidade indiscutível na materialidade do espaço.”
(Paulo Freire)
Este projeto parte da premissa que a educação se constrói para além dos limites da sala de aula e que os espaços e os tempos situados entre, sobre, sob, antes e depois, educam tanto quanto aqueles situados nos limites das estruturas formais do ensino. Nesse sentido a escola se apresenta como espaço e tempo de vivências, diálogos e encontros.
Além de salas flexíveis e adaptáveis às necessidades do espaço e do tempo, a ideia é que cada ambiente se transforme em espaço potencial de práticas educativas: a praça central, as mini praças suspensas que se conectam às rampas, o terraço na cobertura, os espaços formais e informais de encontro, a calçada, a rua, a cidade… tudo é escola.
espaço aberto de imersão criativa
Será um espaço ao mesmo tempo aberto e imersivo:
Aberto para a cidade, como uma praça que se estende a partir da calçada, convidativa, de uso público, sem barreiras
Imersivo, como convite à reflexão e produção criativa, em espaço protegido dos ruídos, da poluição visual e sonora do entorno imediato
potencialidades urbanas
A escola também é aberta às potencialidades urbanas.
Por meio dos instrumentos urbanísticos previstos no estatuto da cidade, o projeto possibilita que, no futuro, seja implantada uma conexão direta entre a escola e o Alto do Saldanha, território classificado como ZEIS (Zona Especial de Interesse Social), conforme o Plano Diretor de Desenvolvimento Urbano de Salvador.
espaços verdes: paisagem imersiva
Em um contexto urbano de ruídos, velocidade, poluição do ar, sonora e visual, os espaços verdes são elementos essenciais para a paisagem imersiva da escola. O verde do talude se espalha em direção à praça central e se estende em direção à rua, como um convite à fruição da ambiência criativa.
Os espaços verdes também são elementos essenciais para a envoltória, na composição de uma membrana de amortecimento entre o exterior e o ambiente interno da escola, que auxilia na qualidade acústica, térmica e visual dos ambientes.
A composição paisagística e as espécies utilizadas também cumprem papel simbólico no projeto, dada a importância e o significado da vegetação e dos elementos naturais para a cultura afro-brasileira e dos povos originários.
envoltória: permeabilidade, proteção e texturas
A necessidade de buscar o equilíbrio entre ambiência imersiva e espaços bem iluminados e ventilados, equilíbrio entre luz e sombra, remete à tradição brasileira do cobogó, que também é sincrética: síntese de tradições árabes, africanas e ibéricas.
Neste caso, o cobogó é reinterpretado a partir da composição diversificada de painéis de tijolos maciços, com gradações entre fechamentos e aberturas. A diversidade de texturas, além de expressar o sincretismo cultural no qual se baseia o projeto, oferece um rico jogo de luz e sombra aos ambientes internos.
Além de filtrar a luz, os painéis de tijolos cerâmicos contribuem para o conforto térmico dos ambientes, devido à alta inércia térmica do material.
materialidade e sistema construtivo
A robustez do tijolo como elemento da envoltória, associado ao concreto como elemento estrutural, combinam simplicidade construtiva e riqueza de texturas, elementos que contribuem para compor o ambiente imersivo e criativo da escola.
A solução estrutural, de lajes maciças protendidas e vedações independentes dos pilares, também permite maior flexibilidade dos espaços.
circulação e espaços de convivência
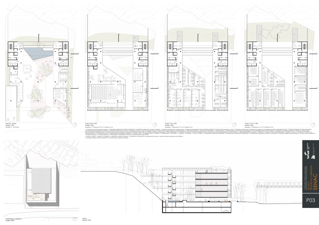
A circulação fluida, conectada aos espaços de convivência, é uma premissa do projeto. Para esse fim, o programa é distribuído em semi níveis, acessados por meio de rampas integradas aos espaços verdes do talude, patamares de convivência, passarelas e praças suspensas.
Em complemento, para atender às demandas de acessibilidade e de segurança contra incêndio, são dispostos elevadores e escadas concentrados em dois núcleos de circulação e serviços, dimensionados de acordo com as normas NBR9050 e NBR9077.
A disposição do programa e dos elementos de circulação permite a separação dos fluxos entre as funções abertas ao público (térreo e mezanino) e os espaços que demandam maior controle (salas de aula e áreas de apoio).
vedações, instalações e flexibilidade de compartimentação
As vedações voltadas para os vazios internos e para as fachadas serão em painéis de vidro temperado, complementados por painéis de correr em tecido colorido, que têm função acústica e de controle de iluminação. Entre as salas, divisórias acústicas moduladas, de correr, fixadas entre trilhos, permitem a reconfiguração dos ambientes, conforme a necessidade. A qualidade acústica dos ambientes é complementada por placas acústicas moduladas (em tecido colorido) fixadas no forro, que facilitam o acesso às instalações.
eficiência energética e sustentabilidade
As soluções passivas, que incluem os espaços imersivos com iluminação e ventilação naturais, elementos de alta inércia térmica, integração com os espaços verdes, além da circulação por meio de rampas, contribuem diretamente para a eficiência energética e a sustentabilidade do projeto.
Em complemento, a fim de permitir a obtenção do LEED Platinum, conforme requisitos do Termo de Referência, foram adotadas estratégias e especificações a partir da lista de requisitos definida pelo USGBC (US Green Building Council) para a construção de escolas: A. Localização e Transporte; B. Terrenos Sustentáveis; C. Eficiência Hídrica; D. Energia e Atmosfera; E. Materiais e recursos; F. Qualidade do Ambiente Interno; G. Inovação; H. Prioridade Regional.
Após confrontação entre a lista de requisitos e as soluções adotadas no projeto (incluídas as condições já estabelecidas do lugar e as possibilidades relacionadas ao processo de construção e de manutenção), a pontuação total obtida é de 95 pontos, o que habilita o projeto para a obtenção do LEED Platinum.
ancestralidade e inovação
A expressão arquitetônica da ancestralidade africana e dos povos originários, interpretada neste projeto para o contexto contemporâneo e sua projeção para o futuro, propõe uma aproximação simbólica a partir de premissas éticas, como ponto de partida para as expressões técnicas e estéticas.
A interpretação cultural de conceitos como território, paisagem, espaço, fluxo, natureza e materialidade é o fio condutor deste projeto. Tal interpretação conduz à aproximação de conceitos como o aquilombamento cultural e o afrofuturismo.
Se no passado os quilombos eram locais de refúgio de africanos escravizados e afrodescendentes contra a opressão, atualmente o termo aquilombar está associado à criação de iniciativas e espaços inclusivos e coletivos de pertencimento, afetividade, acolhimento, sociabilidade, fortalecimento de laços, de memórias e de identidade cultural. São espaços e iniciativas abertos à diversidade e ao protagonismo da expressão criativa da população negra, dos povos originários e de toda a comunidade.
Ficha Técnica:
Concurso Público Nacional de Arquitetura – 2023 – Menção Honrosa
Arquitetura: GSR
Autores: Fabiano José Arcadio Sobreira e Paulo Victor Borges Ribeiro
Colaboradores:
Helena Danik, Lucas Sousa, Maria Schulz, Mariana Albuquerque, Ana Reis e Isadora Fortes.
