Menção Honrosa em Concurso Público Nacional de Arquitetura . 2021.
“Podia construir casa de barro, nada de alvenaria, nada que demarcasse o tempo de presença das famílias na terra.”
(…)
“… não pode construir casa de tijolo, nem colocar telha cerâmica. Vocês são trabalhadores, não podem ter casa igual a dono.”
(…)
“Fazia algum tempo que os moradores decidiram levantar suas casas com materiais duráveis. (…) Era um desejo antigo, sufocado pelos interditos. Queriam ter casas de alvenaria. Queriam moradas que não se desfizessem com o tempo e que demarcassem de forma duradoura a relação deles com Água Negra. (…) Queria uma com paredes caiadas e telhado de cerâmica.”
(sobre a casa em comunidades quilombolas. Torto Arado)

















habitação quilombola
a casa como demarcação do espaço e do tempo
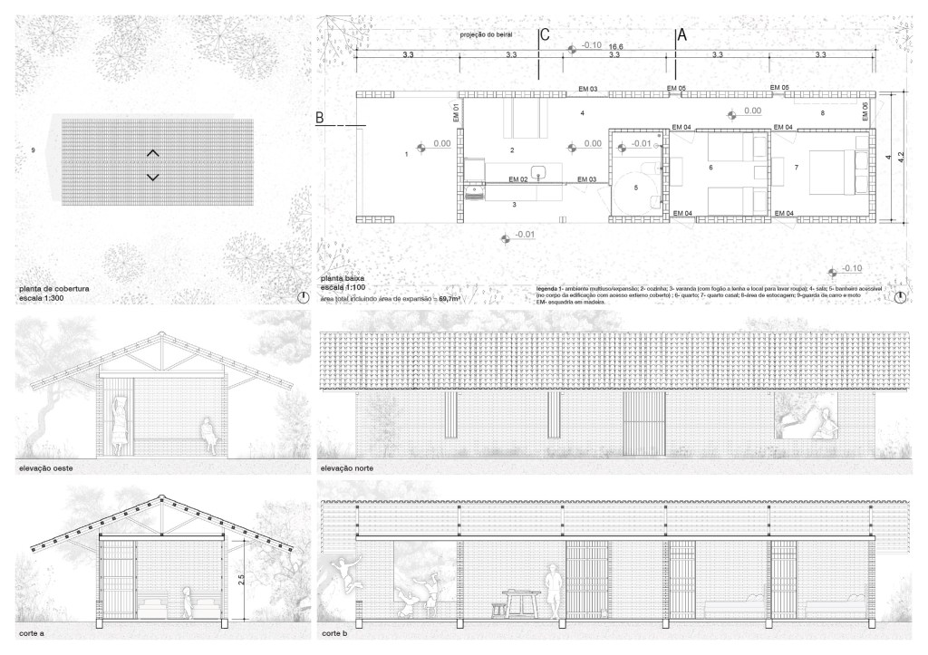
partido arquitetônico
por meio de técnicas simples e materiais locais duráveis, propõe-se um espaço de abrigo e de permanência, que seja sensível à riqueza cultural das comunidades quilombolas, e que ao mesmo tempo supere a fragilidade material e construtiva com as quais foram obrigadas a conviver ao longo da história.
aspectos culturais
ao mesmo tempo que protege, a casa na cultura quilombola se abre em relação à natureza: o quintal, a roça, os caminhos de terra que ligam uma casa às outras. este projeto é baseado na ideia de que na cultura quilombola a casa é uma extensão da natureza, assim como a natureza é uma continuação da casa.
adequação das especificações técnicas
materiais simples e duráveis, com boa inércia térmica: tijolos maciços queimados (o bloco de adobe prensado não resiste às chuvas); telhas cerâmicas (a cobertura em palha também não resiste às intempéries e telhas metálicas geram desconforto térmico e acústico); esquadrias em tábuas de madeira local, com vãos de abertura ajustáveis (evita-se o uso de vidros, que tornam a construção mais cara e reduzem a inércia térmica). utilização de elementos de concreto apenas quando essencial e quando exigido nas especificações do termo de referência.
aspectos plásticos e estéticos
a plasticidade e a estética, neste projeto, são expressões diretas da simplicidade construtiva, da necessidade de abrigo e da expressão cultural quilombola, e que também caracterizam a arquitetura vernacular rural brasileira: beirais generosos, varandas, aberturas protegidas, que se ajustam conforme a necessidade do clima e da ocasião.
funcionalidade, flexibilidade e adaptabilidade
a casa quilombola se adapta ao tempo e às dinâmicas da cultura local: nas tarefas do dia e da noite; em tempos de estio e de chuva, de colheita ou de plantio; de festas ou de recolhimento… os espaços se adaptam às necessidades que se impõem. o projeto permite expansões de fácil execução (que podem ser feitas pela própria comunidade), em especial ao longo do seu eixo longitudinal, seja em direção à sala/cozinha, ou aos quartos.
economicidade e viabilidade construtiva
a casa será construída com materiais simples e duráveis, por meio de técnicas usuais, que fazem parte da cultura rural: alvenarias dobradas e portantes, em tijolo maciço cerâmico; laje de forro em concreto (exigência do termo de referência); cobertura ventilada em telha cerâmica com generosos beirais, sobre estrutura de madeira local (com peças de pequenas dimensões e de fácil execução); piso cimentado sobre terra batida; esquadrias ajustáveis em tábuas de madeira.
sustentabilidade ambiental
a base da sustentabilidade é o vínculo com a cultura local: adequação ao clima (e suas variações ao longo do dia e do ano); iluminação e ventilação naturais; proteção do sol e da chuva; adequação à cultura construtiva local e à disponibilidade de materiais na região. uma vez garantidos os fundamentos da sustentabilidade ambiental, os demais elementos são opções que podem agregar, com o tempo, qualidade de vida à comunidade e que são previstos neste projeto: aquecimento solar de água; placas fotovoltaicas; fossa séptica ecológica (vinculada à irrigação de hortas); coleta e tratamento de águas pluviais.
conforto térmico (NBR 15.220) e desempenho (NBR 15.575)
o estado de Goiás está situado nas zonas bioclimáticas 6 e 7, caracterizadas por baixas amplitudes anuais, clima quente, com estações bem definidas entre seca e chuva. As estratégias recomendadas para o conforto térmico nessas zonas, e que são incorporadas a este projeto, incluem: sombreamento das aberturas; vedações com alta inércia térmica; aberturas moderadas, com ventilação seletiva (nos períodos quentes em que a temperatura interna seja superior à externa); coberturas isoladas e ventiladas. Os grandes beirais do projeto e a disposição das aberturas permitem orientações diversas, sem prejuízo para o conforto ambiental.
acessibilidade (NBR 9050)
uma casa acessível é mais confortável para todos, independente de limitações físicas temporárias ou permanentes. por essa razão, foi utilizado o conceito de desenho inclusivo e adaptável ao projeto: todos os ambientes são acessíveis e adaptáveis, conforme a necessidade da família.
gsr arquitetos
autores: fabiano sobreira e paulo ribeiro
colaboradores: luana alves e lucas sousa
